ОСТ 1 14798-2010 Хомуты зажимные несимметричные с боковым креплением с обкладкой и лентой металлизации

ОСТ 1 14798-2010 ХОМУТЫ ЗАЖИМНЫЕ НЕСИММЕТРИЧНЫЕ С БОКОВЫМ КРЕПЛЕНИЕМ С ОБКЛАДКОЙ И ЛЕНТОЙ МЕТАЛЛИЗАЦИИ

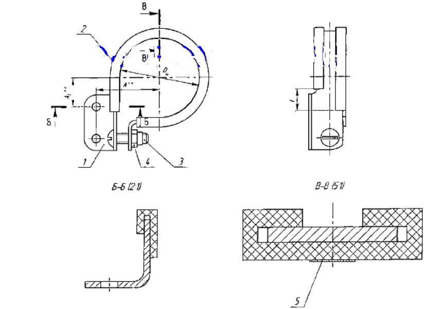
Хомуты зажимные по ОСТ 1 14798-2010 это специальный крепеж с обкладкой и лентой металлизации, предназначенный для крепления трубопроводов и электрожгутов. 

КОНСТРУКЦИЯ И ТЕХНИЧЕСКИЕ ОСОБЕННОСТИ.

Состоит из хомута зажимного несимметричного с обкладкой и лентой металлизации.

Хомут ОСТ 1 14799-2010.pdf

Обкладка ОСТ 1 11526-80.pdf

Гайка ОСТ 1 33055.pdf

Лента металлизации ОСТ 1 14802.pdf

Винт ОСТ 1 31529.pdf

Материал изготовления: сталь, алюминий  (в зависимости от исполнения, рабочей среды и температуры эксплуатации)

Материал покрытия: кадмирование, цинкование, Ан.Окс.нхр.

ОСТ 14798-2010.pdf

Пример условного обозначения хомута зажимного несимметричного с обкладкой и лентой металлизации диаметром 40 мм, исполнения 1 с правым боковым креплением:

Расшифровка обозначения: Хомут 40-1-1-ОСТ 1 14798-2010

Хомут зажимной
Наименование метиза
40
Диаметр
1
Исполнение
1
Вид крепления
ОСТ 1 14798-2010
Нормативно-технический документ

Тоже с правым креплением:

Расшифровка обозначения: Хомут 40-1-2-ОСТ 1 14798-2010

Хомут зажимной
Наименование метиза
40
Диаметр
1
Исполнение
2
Вид крепления
ОСТ 1 14798-2010
Нормативно-технический документ

ПРИМЕНЕНИЕ

     Данные хомуты применяются во многих отраслях промышленности и строительстве.  Предназначены для крепления трубопроводов и электрожгутов.

ОСТ/ГОСТНормальНаименованиеТипоразмерНа складе
ОСТ 1 14798-2010 Хомуты зажимные несимметричные6В наличии
ОСТ 1 14798-2010 Хомуты зажимные несимметричные8В наличии
ОСТ 1 14798-2010 Хомуты зажимные несимметричные10В наличии
ОСТ 1 14798-2010 Хомуты зажимные несимметричные12В наличии
ОСТ 1 14798-2010 Хомуты зажимные несимметричные14В наличии
ОСТ 1 14798-2010 Хомуты зажимные несимметричные16В наличии
ОСТ 1 14798-2010 Хомуты зажимные несимметричные18В наличии
ОСТ 1 14798-2010 Хомуты зажимные несимметричные20В наличии
ОСТ 1 14798-2010 Хомуты зажимные несимметричные22В наличии
ОСТ 1 14798-2010 Хомуты зажимные несимметричные24В наличии
ОСТ 1 14798-2010 Хомуты зажимные несимметричные26В наличии
ОСТ 1 14798-2010 Хомуты зажимные несимметричные28В наличии
ОСТ 1 14798-2010 Хомуты зажимные несимметричные30В наличии
ОСТ 1 14798-2010 Хомуты зажимные несимметричные32В наличии
ОСТ 1 14798-2010 Хомуты зажимные несимметричные34В наличии
ОСТ 1 14798-2010 Хомуты зажимные несимметричные36В наличии
ОСТ 1 14798-2010 Хомуты зажимные несимметричные38В наличии
ОСТ 1 14798-2010 Хомуты зажимные несимметричные40В наличии
ОСТ 1 14798-2010 Хомуты зажимные несимметричные42В наличии
ОСТ 1 14798-2010 Хомуты зажимные несимметричные45В наличии
ОСТ 1 14798-2010 Хомуты зажимные несимметричные48В наличии
ОСТ 1 14798-2010 Хомуты зажимные несимметричные50В наличии

Для изготовителей и поставщиков: Добавить мои товары в базу

Для покупателей: Подать заявку на покупку

НаименованиеТипоразмерМатериалКоличество, штВес, кг
Хомуты зажимные несимметричные ОСТ 1 14798-2010 
О

ОСТ 1 30055-84 Накатка кольцевая стержней болт-заклепок из титанового сплава

ОСТ 1 31076-80 Маркировка крепежных изделий взамен НОРМАЛЬ 176АТ

ОСТ 1 31076-80: Маркировка крепежных изделий (взамен НОРМАЛЬ 176АТ)

ОСТ 1 38016-80 Футорки

ОСТ 1 38020-82 Втулки

ОСТ 1 39502-77 Стопорение болтов, винтов, шпилек, штифтов и гаек

ОСТ 1 39503-77 Длины болтов и винтов

ОСТ 1 39504-79 Головки шестигранные болтов и винтов

ОСТ 1 41471-79 Формообразование концов труб тяг управления из сплава Д16Т. Типовой технологический процесс

ОСТ 1 51730-79 Оснастка для формообразования концов труб тяг управления из сплава Д16Т

ОСТ 1 51731-79 Оснастка для формообразования концов труб тяг управления из сплава Д16Т

ОСТ 1.41001-79 Диаметры отверстий под нарезание резьбы метрической по нормали 754АТ

ОСТ 1.41002-79 Диаметры стержней под нарезание резьбы метрической по нормали 754АТ и ОСТ 1.00039-73

ОСТ 92-0762-72 Болты, винты из титановых сплавов

ОСТ 92-0912-69 Детали из высокопрочных углеродистых легированных и высоколегированных сталей. ОСТ 92-0912-69

ОСТ 92-1130-85 Детали стальные точные

ОСТ 92-1179-77 Детали и сборочные единицы из сталей марок 07Х16Н6 и 08Х17Н5М3

ОСТ 92-8653-75 по ОСТ 92-8674-75 Соединения трубопроводов по внутреннему конусу

ОСТ 92-8843-77 Крепежные детали повышенного качества

ОСТ-1-33102-80 Взамен нормали 102АТУ Гайки ОСТ-1-33102-80

Отраслевая нормаль 214АТ В замен нормали 214МТ55 метрическая резьбой со свободной посадкой

Отраслевая нормаль 714М55 pdf Кольца плоские ,стопорные технические условия

Отраслевая нормаль авиационной техники 101АТУ Взамен 201СТУ51

Отраслевая нормаль авиационной техники. Нормаль 722АТ.

Р

РЕЗЬБА МЕТРИЧЕСКАЯ

Резьба метрическая усиленная тугой посадкой сталь в алюминиевые и магниевые сплавы. Нормаль 254АТ взамен нормальный 154МТ46

Резьба метрическая. Основные размеры и допуски. Отраслевая нормаль 257АТ взамен 57АТ50 взамен 153МТ54.

РЕЗЬБА ТРАПЕЦЕИДАЛЬНАЯ

РЕЗЬБА ТРУБНАЯ ЦИЛИНДРИЧЕСКАЯ

РЕЗЬБА УПОРНАЯ

Резьба усиленная метрическая тугой посадкой сталь сталь система вала настоящая норма распространяется на резьбу усиленную метрическую тугой посадкой для сопрягаемых материалов сталь в сталь. Нормаль 122МТ53 взамен нормали 122МТ51

Резьба усиленная метрическая тугой посадкой сталь сталь система вала настоящая норма распространяется на резьбу усиленную метрическую тугой посадкой для сопрягаемых материалов сталь в сталь. Нормаль 122МТ53 взамен нормали 122МТ51

Резьбовые соединения. Резьба метрическая с натягом по посадкам 2Н5Д и 2Н5С Отраслевой стандарт ОСТ 1 04065–92

Оформите заказ или получите консультацию